logo

1
2
3
4

Thi công xây dựng Cao ốc văn phòng 84A/42 Trần Hữu Trang, P.10, quận Phú Nhuận

Giá: Liên hệ

Dự án thi công xây dựng Cao ốc văn phòng 84A/42 Trần Hữu Trang, P.10, quận Phú Nhuận bền đẹp, chất lượng, đáp ứng mọi tiêu chuẩn của khách hàng.

Với dự án thi công xây dựng Cao ốc văn phòng 84A/42 Trần Hữu Trang, P.10, quận Phú Nhuận, Công ty đã thực hiện toàn bộ các hạng mục theo bản thiết kế đề ra, đáp ứng được những nhu cầu của khách hàng. Công ty TNHH Thiết Kế Xây Dựng Ngọc Phương Minh rất hân hạnh được đồng hành cùng các dự án xây dựng nhà ở, cao ốc văn phòng và nhiều loại hình xây dựng khác. 

 

Thông tin dự án thi công xây dựng Cao ốc văn phòng 84A/42 Trần Hữu Trang, P.10, quận Phú Nhuận

- Loại hình xây dựng: Cao ốc văn phòng.

- Vị trí: 84A/42 Trần Hữu Trang, P.10, Quận Phú Nhuận, TP.HCM.

- Kết cấu dự án: Gồm 1 tầng hầm và 4 tầng lầu. 

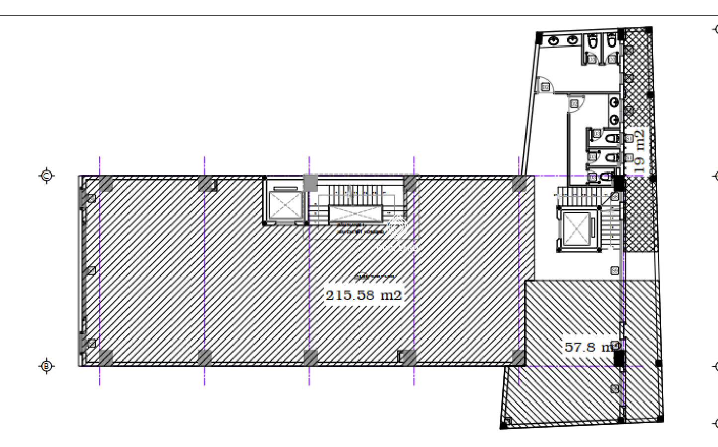
- Diện tích: 215.58m2 x 57.8m2 x 19m2.

- Đơn vị xây dựng: Công ty TNHH Thiết Kế Xây Dựng Ngọc Phương Minh.

 

Bản thiết kế thi công xây dựng Cao ốc văn phòng 84A/42 Trần Hữu Trang, P.10, quận Phú Nhuận 
Bản thiết kế thi công xây dựng Cao ốc văn phòng 84A/42 Trần Hữu Trang, P.10, quận Phú Nhuận 

 

Đặc điểm thi công xây dựng Cao ốc văn phòng 84A/42 Trần Hữu Trang, P.10, quận Phú Nhuận

Dự án được tọa lạc tại một vị trí khá đắc địa, sầm uất của TP.HCM. Với nhu cầu phát triển mạnh mẽ trong việc khởi nghiệp, việc xây dựng nên những cao ốc văn phòng, sẽ mang lại nhiều lợi nhuận cao cho các chủ đầu tư.

Tại dự án thi công xây dựng Cao ốc văn phòng 84A/42 Trần Hữu Trang, P.10, quận Phú Nhuận, Ngọc Phương Minh đã thiết kế, và xây dựng dựa trên những nhu cầu cũng như chi phí mà chủ đầu tư muốn thực hiện. Dự án xây dựng có các đặc điểm như:

- Phong cách thiết kế hướng đến sự tiện nghi, nhưng vẫn đảm bảo được tính sang trọng, hiện đại.

- Cách bố trí, sắp xếp các tầng khoa học, đảm bảo đầy đủ nhu cầu của các khách hàng tương lai khi muốn thuê tòa nhà này, để trở thành văn phòng của Công ty mình.

 

Hình ảnh hoàn thiện khái quát dự án thi công xây dựng Cao ốc văn phòng 84A/42 Trần Hữu Trang, P.10, quận Phú Nhuận
Hình ảnh hoàn thiện khái quát dự án thi công xây dựng Cao ốc văn phòng 84A/42 Trần Hữu Trang, P.10, quận Phú Nhuận

 

- Cao ốc được xây dựng với 1 tầng hầm, thuận tiện cho việc để xe, kho hàng. Và có 4 tầng lầu, với mỗi tầng, trần tòa nhà được xây cao 2.7m, đạt đúng tiêu chuẩn của một văn phòng, và làm cho không gian được thoáng đãng. 

- Phần ngoại thất bên ngoài tòa nhà, được lắp đặt hệ thống cửa kính giảm tiếng ồn, giảm nhiệt, nhưng vẫn đảm bảo tiếp nhận được ánh sáng tự nhiên bên ngoài vào tòa nhà. 

- Bên trong, cao ốc được lắp đặt một hệ thống đèn chiếu sáng hiện đại với đèn Led, đáp ứng tiêu chuẩn chiếu sáng và đồng thời cũng góp phần tiết kiệm được nguồn nhiệt năng và chi phí điện khi sử dụng.

 

Hình ảnh hoàn thiện khái quát dự án thi công xây dựng Cao ốc văn phòng 84A/42 Trần Hữu Trang, P.10, quận Phú Nhuận 
Hình ảnh hoàn thiện khái quát dự án thi công xây dựng Cao ốc văn phòng 84A/42 Trần Hữu Trang, P.10, quận Phú Nhuận 

 

- Với tiêu chuẩn 4 tầng, cao ốc cũng lắp đặt hệ thống thang máy đạt chuẩn an toàn, thuận tiện cho việc di chuyển lên xuống tòa nhà một cách nhanh chóng.

- Cao ốc còn được xây dựng với một hệ thống phòng cháy chữa cháy hiện đại, cùng hệ thống xử lý nước thải thông minh, chuẩn quốc tế, giúp khách hàng hoàn toàn yên tâm về vấn đề vệ sinh cũng như an toàn khi lựa chọn thuê văn phòng tại đây.
 

Thi công xây dựng Cao ốc văn phòng 84A/42 Trần Hữu Trang, P.10, quận Phú Nhuận bởi Ngọc Phương Minh

Dự án này là một trong những dự án mà Ngọc Phương Minh được thực hiện với cả tâm huyết của mình. Dự án được xây dựng với mục đích làm cao ốc văn phòng, nên mọi hạng mục phải được thực hiện theo tiêu chuẩn chất lượng và hiện đại. Tất cả những bản vẽ, kết cấu, vật liệu xây dựng của dự án thi công xây dựng Cao ốc văn phòng 84A/42 Trần Hữu Trang, P.10, quận Phú Nhuận đều được Công ty cân nhắc rất kỹ và trao đổi với chủ đầu tư, hầu cho đưa ra được một bản thiết kế tốt nhất, và thi công cách hoàn thiện nhanh chóng.

Lựa chọn thi công cao ốc văn phòng nói riêng và các hạng mục xây dựng nói chung tại Công ty TNHH Thiết Kế Xây Dựng Ngọc Phương Minh, bạn sẽ hoàn toàn yên tâm vì sự tận tâm, chu đáo và chuẩn chỉnh trong từng quy trình thực hiện tại đây.

 

Thi công xây dựng Cao ốc văn phòng 84A/42 Trần Hữu Trang, P.10, quận Phú Nhuận bởi Ngọc Phương Minh
Thi công xây dựng Cao ốc văn phòng 84A/42 Trần Hữu Trang, P.10, quận Phú Nhuận bởi Ngọc Phương Minh

 

Những lý do bạn nên chọn Ngọc Phương Minh là đơn vị thiết kế và xây dựng là:

- Kinh nghiệm lâu năm trên thương trường xây dựng, nên nắm bắt rất nhanh chóng những nhu cầu mà khách hàng đưa ra, thực hiện đúng dựa trên những mong muốn của khách hàng. 

- Đội ngũ kiến trúc sư bắt kịp xu hướng, luôn đưa ra những bản vẽ hoàn hảo với mọi chi tiết rõ ràng, giúp khách hàng dễ hình dung được kết quả cuối cùng.

- Đội ngũ xây dựng lành nghề, chuyên tâm trong mọi hạng mục, thực hiện đến đâu, chắc chắn đến đó, bảo đảm chất lượng tốt nhất cho công trình.

- Máy móc, vật liệu xây dựng đều được lựa chọn kỹ càng, mua sắm tại những nhà cung cấp uy tín.

- Có hệ thống vận hành, giám sát thi công chuyên nghiệp, bảo đảm đúng tiến độ đề ra với khách hàng. 

- Chi phí luôn được tối ưu, sẵn sàng giải quyết các vấn đề phát sinh với khách hàng trên tinh thần thiện chí, luôn đem lại điều tốt nhất cho khách hàng.

 

Dự án thi công xây dựng Cao ốc văn phòng 84A/42 Trần Hữu Trang, P.10, quận Phú Nhuận của Công ty đã đem lại cho khách hàng sự hài lòng ngoài mong đợi. Nếu bạn lựa chọn Ngọc Phương Minh đồng hành trên công cuộc tạo ra những công trình thi công hoàn thành một cách hoàn hảo, liên hệ ngay qua website Ngocphuongminh.com để được tư vấn và nhận những báo giá ưu đãi tốt nhất trên thị trường hiện nay.